The Studio, Harston, Cambridge 01223 264436 mail@ridersale.co.uk

Projects - Creating value and great spaces

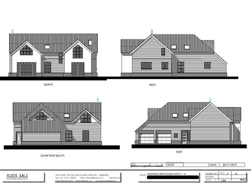
Some examples of exceptional spaces and value added projects are shown below